Before Remodelling
Dated, tired façade, cramped living space, bedrooms on the ground floor.
Dated, tired façade, cramped living space, bedrooms on the ground floor.

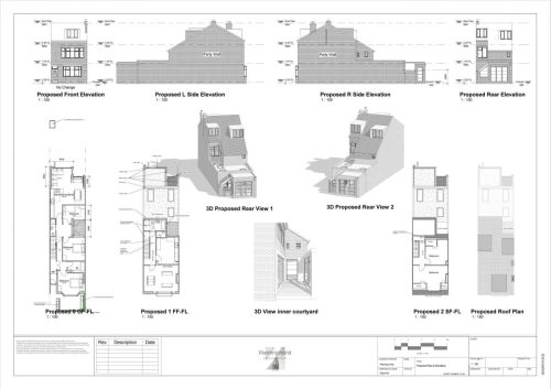
Remodelling facelift, redesigned to modern, living standards, garage conversion, first floor extension, adding two additional bedrooms in the roof space, extending the roof, while maintaining it’s pitch. Full internal reconfiguration.
Planning World, is the “One Stop Online Shop” for every type of Planning Application, no matter how large or small.
We handle everything from concept to completion, providing stress free planning at unbeatable prices.
Contact us today for a free no obligation quote!
Planning World
Registered Office: 7 Bell Yard, London WC2A 2JR
T: +44 (0)800 488 0063
E: info@planningworld.co.uk